Produse
ACASA > Produse
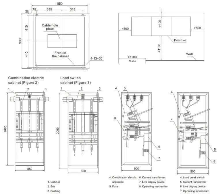
35kV Aparatură cu inel închis fix pentru distribuție
  • 35kV Aparatură cu inel închis fix pentru distribuție35kV Aparatură cu inel închis fix pentru distribuție

35kV Aparatură cu inel închis fix pentru distribuție

Comewill este un producător profesionist din China. Aparatul nostru de distribuție cu inel închis fix de 35 kV (denumit în continuare „unitatea principală inelă”) pentru distribuția energiei. Acesta este un aparat de comutare de înaltă tensiune conceput special pentru sistemele de distribuție a energiei electrice, potrivit pentru nevoile de achiziție și selecție a proiectelor de infrastructură energetică și este o alegere ideală pentru deciziile de achiziție.

Fiind echipament de bază pentru controlul și protecția rețelei de distribuție, aparatele de distribuție cu inel fix de 35 kV de înaltă calitate Comewill, fabricate în China, pot produce în mod stabil o putere fiabilă în diferite scenarii de aplicații, cum ar fi proiecte de construcție și renovare a rețelei electrice urbane, întreprinderi industriale și miniere, clădiri înalte și facilități publice îndeplinesc pe deplin cerințele de bază ale cumpărătorilor pentru performanța echipamentelor.

Această unitate principală inelă cu design fix a devenit produsul preferat pentru achiziționarea unui sistem modern de distribuție a energiei, oferindu-vă o configurație rentabilă a infrastructurii de alimentare.

Date tehnice

Număr de serie Articol Unitate Date
1 Tensiune nominală kV 12 40.5
2 Frecvența nominală Hz 50/60
3 Curent nominal A 630 630/1250
4 Frecvența de putere nominală rezistentă la tensiune (1 min.) Faze și la pământ kv 42 95
Izolarea distanțelor 48 118
Tensiune de rezistență nominală a fulgerului Faze și la pământ 75 185
Izolarea distanțelor 85 215
Tensiune de rezistență la frecvența de alimentare (circuit de control și auxiliar) 2
5 Curent nominal de rezistență de scurtă durată kA 20/25 31.5
6 Curent nominal de vârf de rezistență kA 50/63 80
7 Durata curentului nominal de scurtcircuit s 4 4
8 Curent nominal de rupere de scurtcircuit kA 20/25 31.5
9 Curent nominal de scurtcircuit kA 50/63 80
10 Durata arcului s 1 1
11 Secvență de operare nominală
0-0,3s-CO-3min-CO
12 Gaz izolator
SF6
13 Rata anuală de scurgere % ≤ 0,01
14 Grad standard de protecție Cutie de gaz sigilată
IP67
Carcasă de comutație IP4X
15 Presiunea nominală de umflare MPa 0.03
Presiune la nivel funcțional minim 0.01
16 Tensiunea nominală de alimentare a circuitului auxiliar V DC 24, 48, 110, 220, AC220
17 Durata de viata mecanica Întrerupător Operațiunea 10000 11000
Comutator de izolare 5000 3000
Întrerupător de împământare 5000 3000
18 Rezistența electrică a întreruptorului Operațiunea 30(E2)
19 Pierderea continuității serviciului
LSC2

Parametri tehnici de mediu de operare

·Temperatura ambiantă: -10°C ~ +40°C
·Altitudine: Înaltă tensiune ≤1000m; Tensiune joasă ≤2500m (design personalizat disponibil pentru achiziții în afara intervalului)
· Umiditate relativă: ≤85%
·Intensitate seismică: ≤ Magnitudine 8
· Cerințe preliminare de mediu: Fără pericole de incendiu/explozie, fără poluare severă, fără coroziune chimică, fără vibrații violente (locul de achiziție trebuie să le îndeplinească)

Prin eforturile neobosite ale tuturor angajaților noștri, ne îmbunătățim continuu managementul calității pentru a ne asigura că aparatul nostru de distribuție cu inel închis fix de 35 kV rămâne o sursă de încredere pentru clienții noștri. Scopul nostru este de a oferi clienților cel mai cuprinzător sistem de testare și cele mai potrivite soluții, maximizând satisfacția clienților. Aderăm la principiile clientului în primul rând, orientării spre piață și eficienței și ne cultivăm în mod continuu talentul.

Hot Tags: unitate principală cu inel închis, China, producători, fabrică, preț, întrerupător de întrerupere a încărcăturii de aer 630A, întrerupător de deconectare SF6 pentru interior, întrerupător de vacuum îmbrăcat în exterior, transformator de tensiune monofazat 20 kV, întrerupător de circuit izolat cu aer

Hot Tags: 35kV Aparatură cu inel închis fix pentru distribuție, China, producător, furnizor, fabrică, comerț cu ridicata, personalizat, în stoc, fabricat în China, preț scăzut, calitate
Trimite o anchetă
Informatii de contact
  • Abordare

    No.777 Wanweng Road, sub-districtul Wengyang, orașul Yueqing, orașul Wenzhou, provincia Zhejiang, China

Trimiteți o întrebare către Comewill pentru aparate de comutare, întrerupătoare de circuit în vid, transformator de curent. Obțineți oferte personalizate, prețuri mici sau asistență expertă din partea echipei noastre din China.
X
Folosim cookie-uri pentru a vă oferi o experiență de navigare mai bună, pentru a analiza traficul site-ului și pentru a personaliza conținutul. Prin utilizarea acestui site, sunteți de acord cu utilizarea cookie-urilor. Politica de confidențialitate
Respinge Accepta